아주 사적인 Zootopia
화장실 샤워 칸막이 설치 본문

우리집 현관 중문 디자인을 보다시피 (일반적인 중문은 3중 슬라이딩 도어를 주로 사용하는 추세다) 검은색 프레임의 금속+유리 조합의 여닫이문을 설치했는데, 지금 와서 보니 비슷한 디자인이라도 슬라이딩도어로 설치할 수 있는 문제였다. ^^;;

뭐 그렇다고 썩 나쁘진 않은데, 문제는 화장실 샤워부스 역시 같은 디자인으로 적용하고 싶었다는 거다.
왜 문제냐고 하냐면, 해외 화장실 샤워부스 사례에서는 아주 쉽게 관찰 가능한 이 부스 디자인이 국내에서는 도저히 쉽게 구현하기 어려웠다는 거다.
어떻게 찾은 유리칸막이는 유리 위에 검은색 프린트를 한 제품이라던가...
일단 이런 메탈프레임 디자인을 적용하려면, 내가 알기로는 블랙 스테인레스스틸을 써야 한다는 거다.
을지로나 종로 쪽에 가면 블랙 스테인레스스틸을 다루는 곳도 많기에 도면을 가져가면 가공은 가능하다만, 유리부터 시공까지 다 해낼 자신이 없었다.금전+시간 여유가 있다면 못 할 것도 없다만...




그 사이 약 2년의 세월이 흐른 덕분일까, 블랙 스테인레스 제품을 시공하는 업체가 조금씩 눈에 띄기 시작했다.
게다가 샤워부스 없이 샤워커튼으로 버티는 것에도 한게가 있었고...
이번에 유리칸막이 시공을 하기로 했다.
지금까지 쓰던 화장실 상황은 이랬다.

(배관에서 녹이 나올까봐 샤워기에 필터를 달아주었는데, 녹은 커녕 티끌도 보이지가 않는다...)
샤워 커튼을 이용해서 쓰고 있었는데, 한계가 있는데다 샤워커튼은 금새 곰팡이 등으로 오염된다.

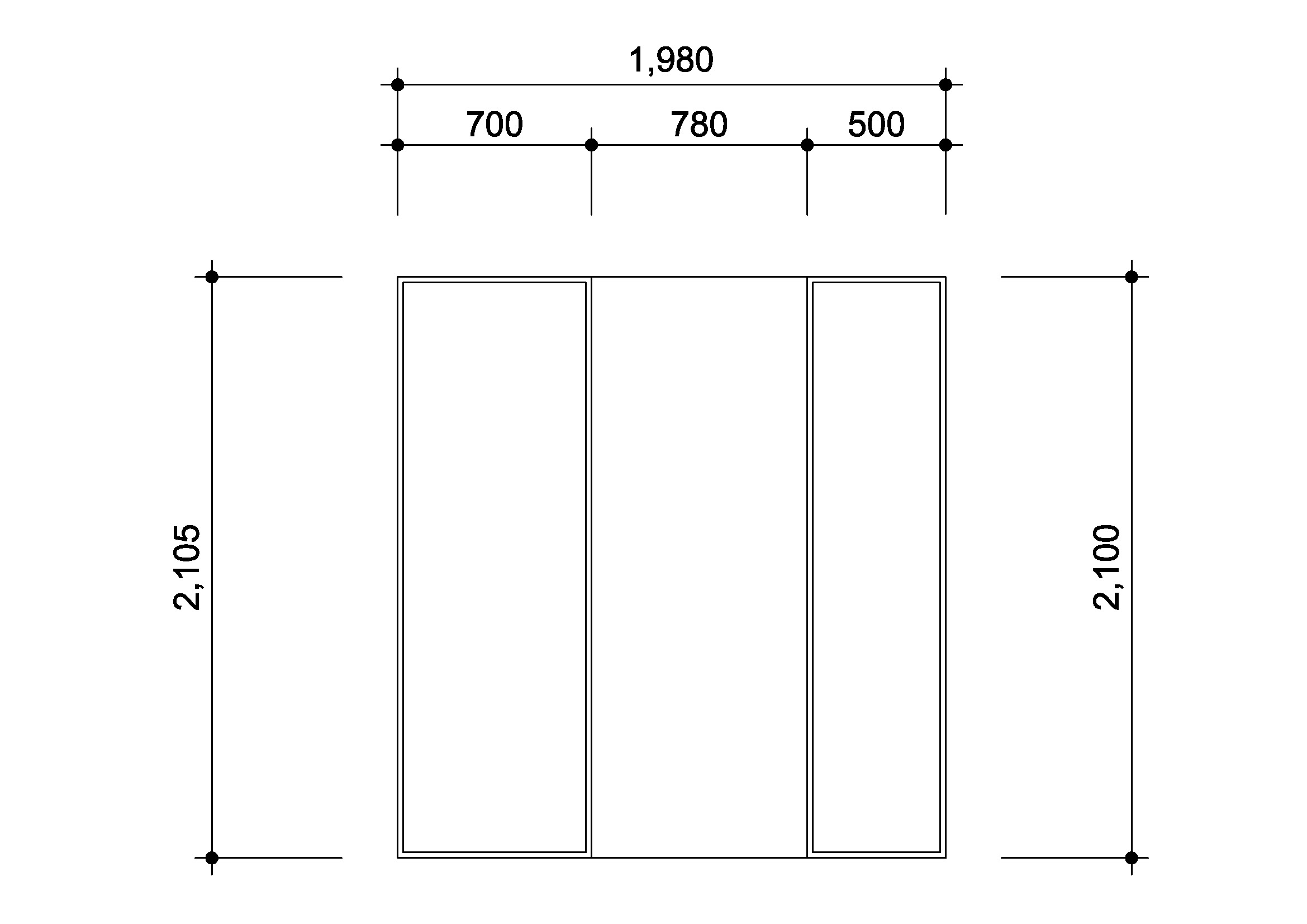
유리칸막이 사이즈는 통로 약 800mm를 남겨놓고 좌우로 하기로 했는데, 서비스 기본 제공은 750mm x 2000mm이고
우리 화장실은 높이가 2100mm이라 높이를 100mm 높이고, 폭은 약간 좁혔다.
근데 실제 설치하고 보니, 샤워부스의 통로를 남겨둘거면 600mm 정도만 남겨두어야 적당하지 않았나 싶다.
일단 봅시다.
시공 자재들이 들어왔다.
블랙 스테인레스스틸 ㄷ형 프레임, 강화유리가 전부다.

엄청나게 디테일한 제품은 아니고, ㄷ자 모양의 금속 프레임을 ㅁ자로 돌리고 강화유리를 끼워서 마무리하는 형식이다.
프레임의 위아래는 양면테잎으로 고정하고, 측면은 칼브럭+피스로 고정한다.
바닥에 양면테잎을 쓰는 이유는 바닥에 구멍을 냈다가는 자칫 난방 배관에 구멍을 낼 수 있기 때문이다...ㅠ
그 이후에 사방으로 반투명 실리콘으로 마감을 하면 마무리







돔천장 설치 때 내가 포인트 조명 위치를 잘못 잡았나보다...
사실 이 때만 해도 유리칸막이 설치할 생각을 못할 때였기 때문이었을지도 모르겠다.




실리콘을 쏴주고 마무리...
나는 이제부터 등기구 자리 메꾸는 방법을 고민해야 할 듯 하다...
가급적 같은 재료를 구해서 보수하고 싶은데, 돔천장 자재 1판 가격이 5~7만원씩 하니 저 구멍 막자고 자재 원판을 다 살수도 없는 노릇이고...ㅠㅠ
어디 현장에서 쓰고 남은 로스 부분만 있으면 딱일텐데...
하...

이렇게 마무리가 되었는데, 조금 아쉽다.
샤워기 쪽은 적어도 길이 800mm는 되어야 할 듯 하고, 통로 폭이 800mm 씩이나 되다보니 또 너무 휑한 느낌이 크다.
아직 인테리어 치수에 대한 감각이 많이 부족하다는 것을 느낀다.
'Architecture! > Interior' 카테고리의 다른 글
| 거실장 변경 (0) | 2023.02.20 |
|---|---|
| 침실 단열 보강 작업 - 02 (0) | 2022.12.14 |
| 침실 단열 보강 작업 - 01 (0) | 2022.09.01 |
| 화장실 리모델링 (0) | 2022.08.03 |
| [중국 칭다오]애플 매장 인테리어-만상성, 테라조 시공 현장 (0) | 2022.05.30 |