아주 사적인 Zootopia
KAAN Architecten - ISMO 본문
ISMO
Research Center, Higher Education, Office
Architects : KAAN Architecten
Area : 10,000m²
Year : 2018
Photographer : Fernando Guera | FG+SG, Sebastian van Damme
Location : Orsay, France
출처 : Archdaily.com
ISMO / KAAN Architecten
Completed in 2018 in Orsay, France. Images by Sebastian van Damme, Fernando Guerra | FG+SG. The Institut des Sciences Moléculaires d’Orsay (ISMO) has recently moved into new premises designed by KAAN Architecten. The building is located on...
www.archdaily.com
The Institut des Sciences Moléculaires d’Orsay (ISMO) has recently moved into new premises designed by KAAN Architecten. The building is located on the Plateau de Saclay, 20 km south-west of Paris. Initiated in 2010, and born of the fusion of three research laboratories, this higher institute for molecular physics and physico-chemistry, under the supervision of Université Paris-Sud and CNRS, employees a staff of 170 collaborators. ISMO merges with the Centre de Physique Matière et Rayonnement, grouping physics laboratories, an educational building and a reception centre for international researchers.
The new ISMO building is located within the Paris-Saclay Campus, an urban campus spread over nearly 600 hectares. Dedicated to higher education, research and innovation, this mixed vicinity is accompanied by housing, services and offices. Major names in architecture and urbanism have been involved in the design of this urban campus, and have contributed to making it one of the eight most promising global clusters. The monumental rectangular building of 10.000 square metres designed by KAAN Architecten is a remarkable component in this original architectural development.
A basic design principle has guided the Dutch firm: that ISMO staff should be able to experience their journey to and through the building like a walk in the park and the ancient forest surrounding the building. In fact, the project represents an exemplary integration of an urban-meets-rural layout with the new concrete structure emerging from the forest within an undulating landscape of rolling hills. A broad flight of steps and a ramp wind from Rue André Rivière to a forecourt. Both are paved in concrete tiles, giving the whole ensemble the charm of an Italian palazzo.
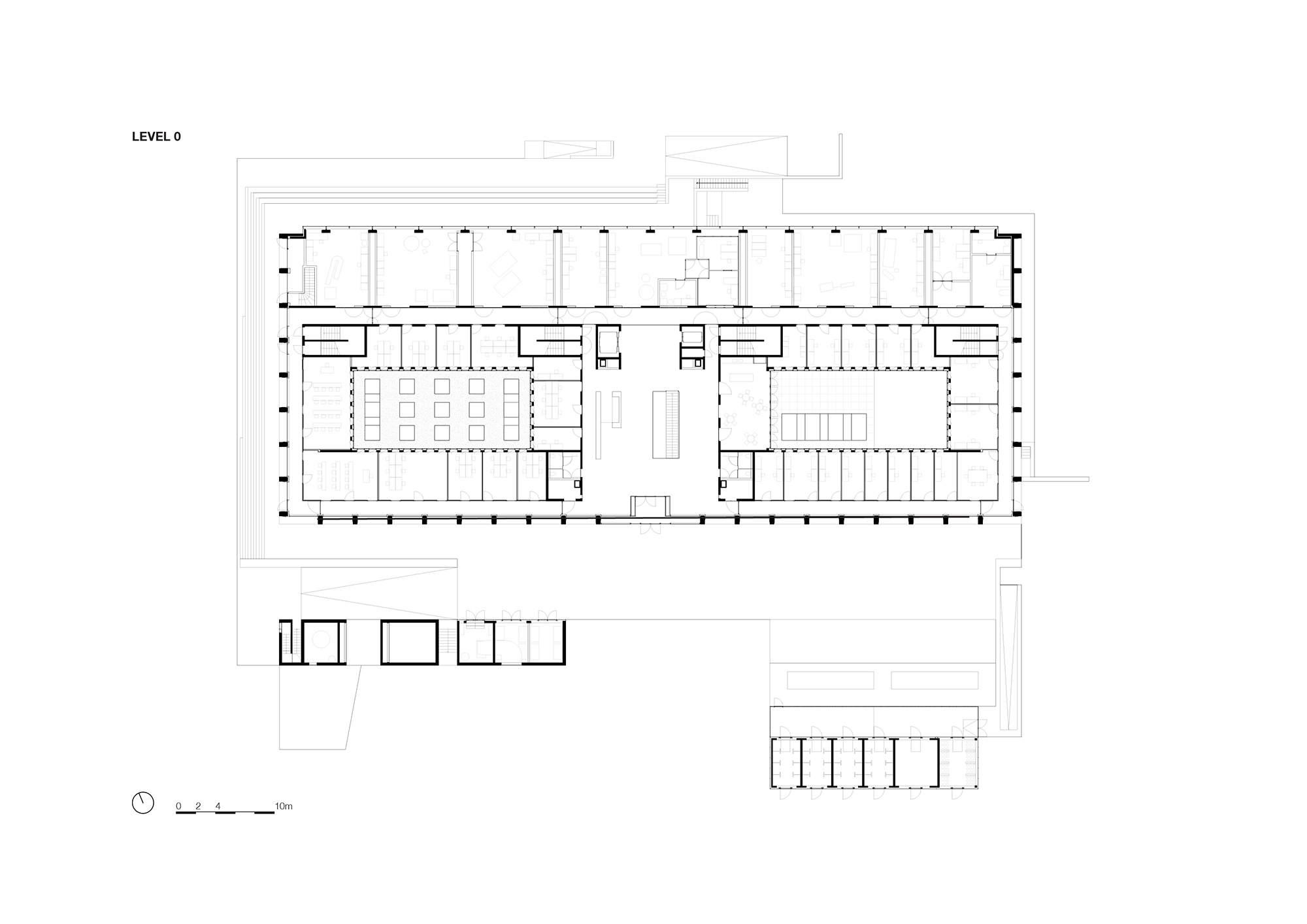
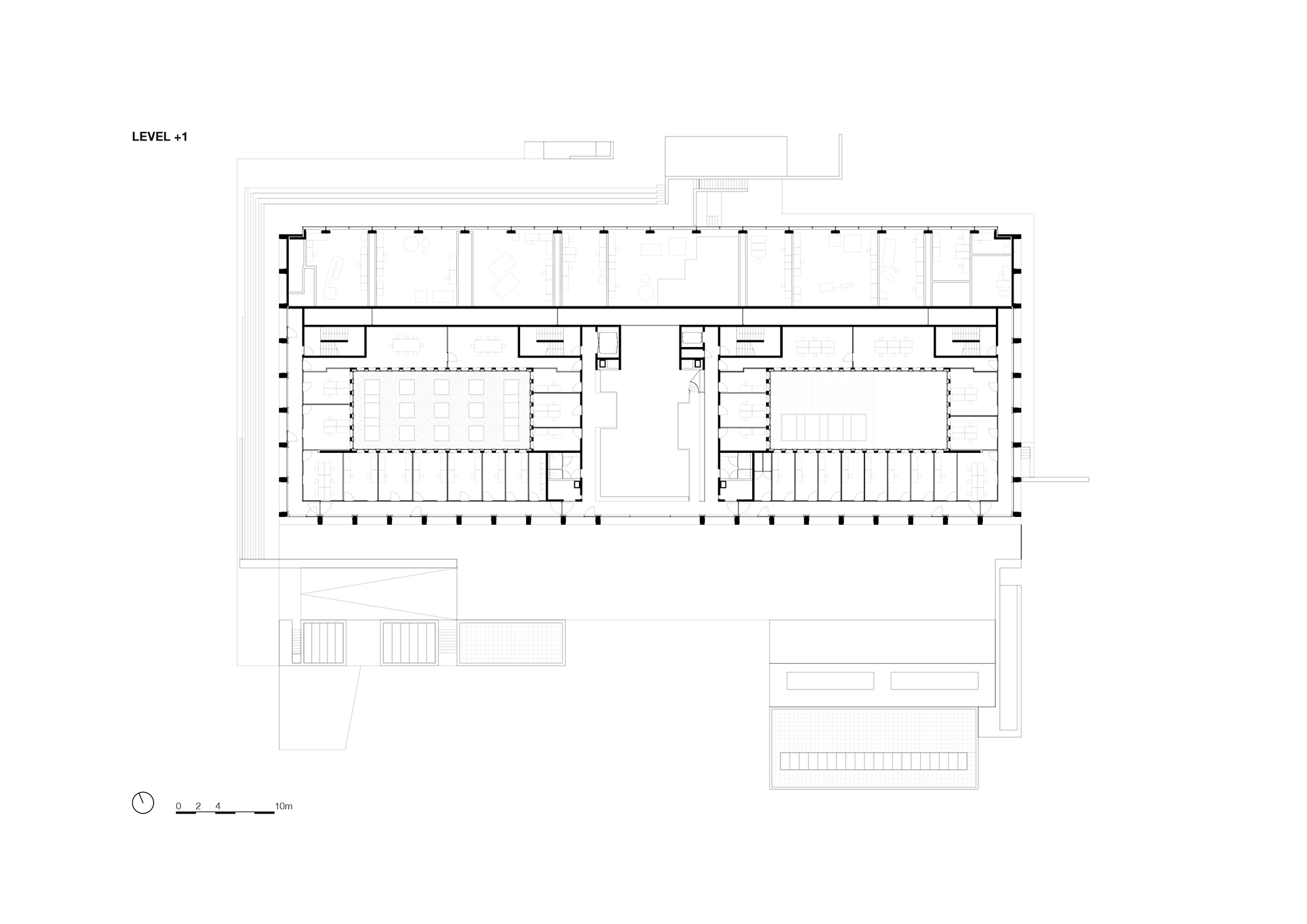
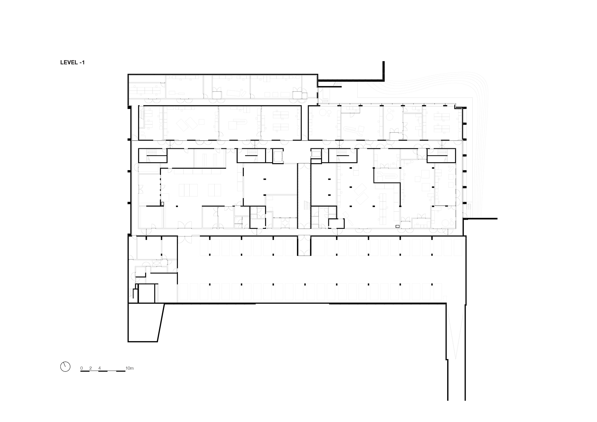
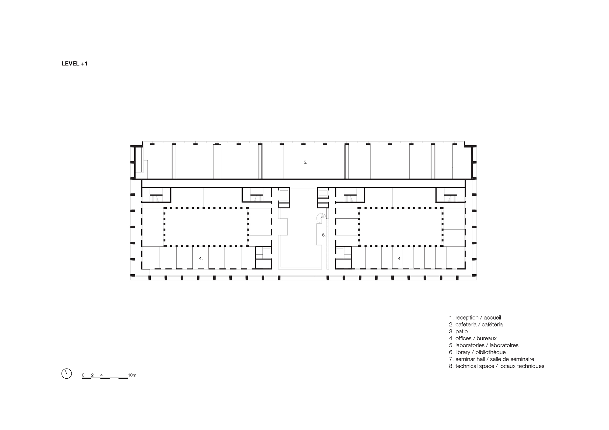
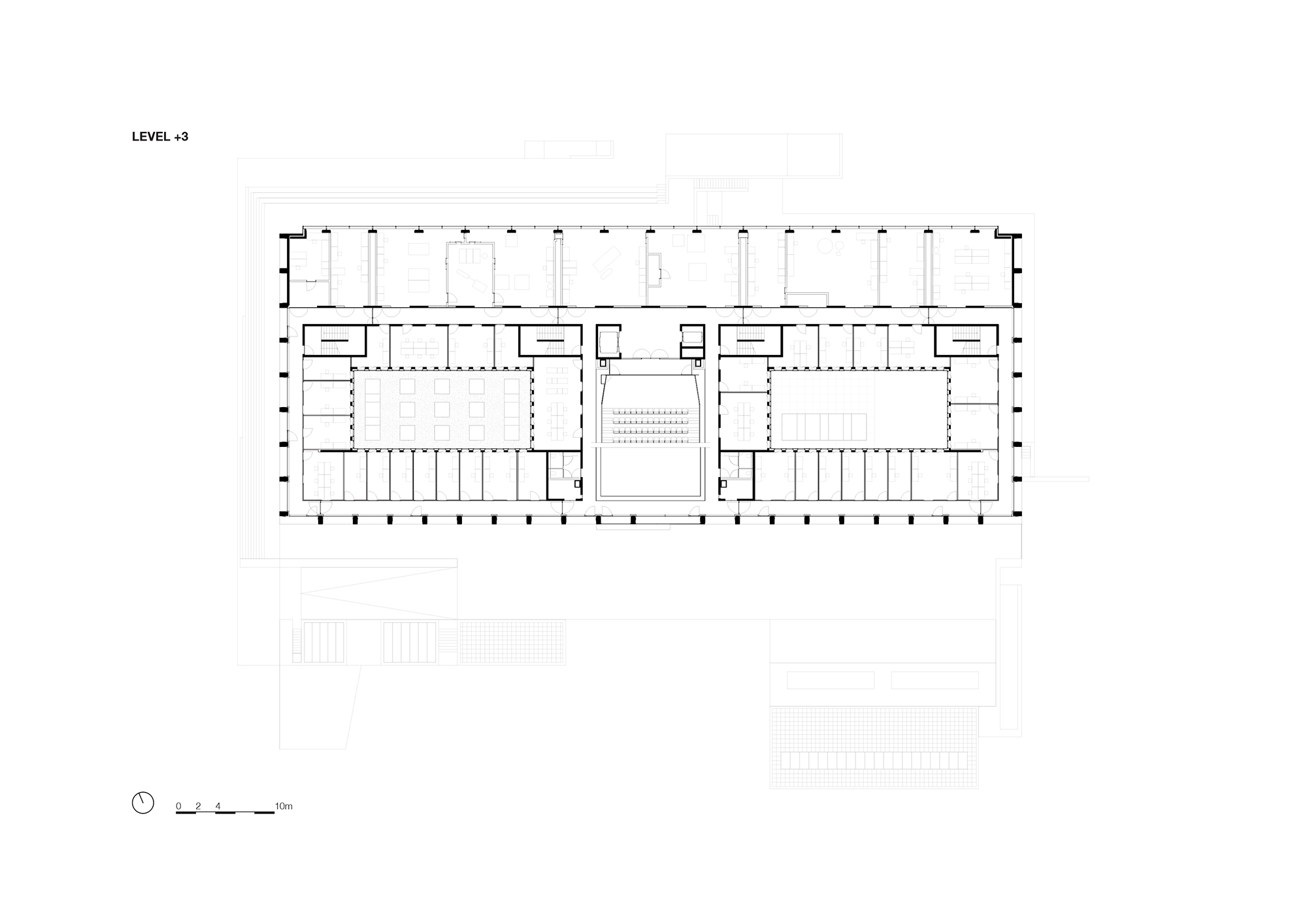
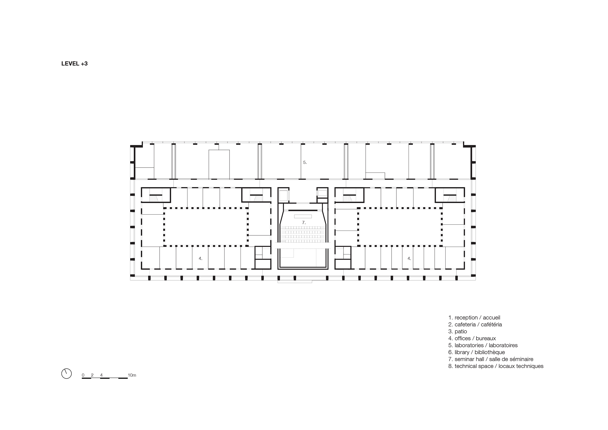
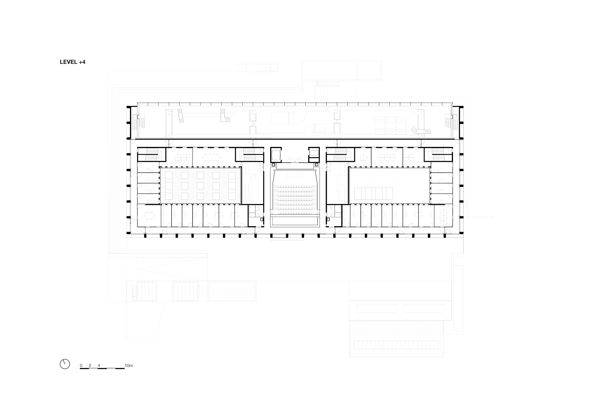
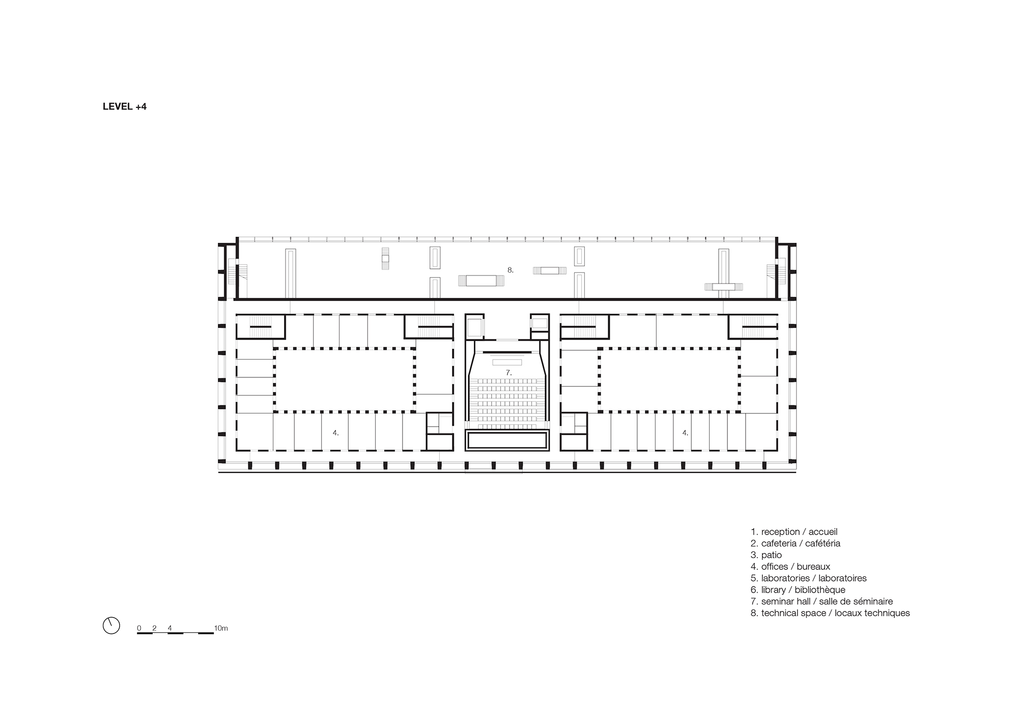
The ISMO building is divided into two architecturally expressed realms, intertwined into a single entity. One area contains lasers, spectrometers and other advanced scientific instruments, and the other comprises smart, quiet meeting and office spaces that provide calm working conditions and promote concentration.
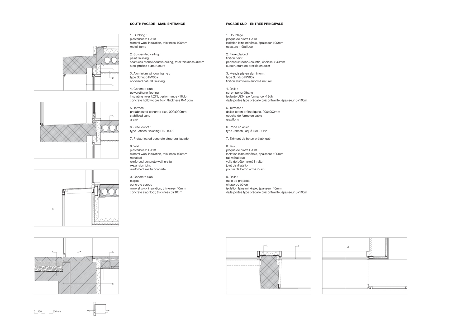
While the laboratories, which scarcely admit daylight, are situated on the long, north-facing side of the building behind a sleek curtain wall, the southern facade houses the office areas, where sturdily stacked concrete posts and lintels form a pattern of rectangles. The grid stands out for its glazed, niche-like infills, set 80 centimetres deep into the facade. The vast floor-to-ceiling windows offer stunning views of the surrounding landscape. The entrance, situated in the middle of this facade, is made immediately evident by the deviation of pattern and the glazed entryway, which has been lightly brought forward.
Entering the building, a clear white space unfolds and extends up to the roof. Daylight floods the atrium through the facade and a large skylight. The atrium features a reception desk, a cafeteria and a wide staircase descending to laboratories and the parking garage. To the right of the entrance, a library wall stretches over two storeys, connected by an enclosed spiral steel staircase. Pointing upwards, rectangular balconies project into the space as comfortable settings for conversations and exchange of ideas. The cohesive combination of daylight, spaciousness and sightlines creates a grand spatial effect.
In the office areas, corridors run immediately behind the facades, across all the floors, and the working spaces are situated around two spacious courtyards that provide natural light and have been strategically designed for purposes that require a certain degree of privacy.
Alongside laboratory research and data processing, the building accommodates academic education through an auditorium that is suspended like a box over the atrium at levels 3 and 4. The sloping underside of the seating area is a perfect complement to the skylight, as it reflects and doubles the light. Inside, the auditorium is warmly cladded with oak.
The building is unified by a consistent facade treatment. The rectangles and deep recesses of the front extend around the corners to the side facades and continue all the way to the end corners. The inclusive frontage strategy unites the complementary approaches and activities that coexist within the institution.
KAAN Architecten’s subtle yet expressive functionalism, with its undertones of sophistication, is also at the core of several residential blocks and multi-purpose buildings, which are currently under construction in Lille, Nantes and Paris. Moreover, the monolithic Chambre de Métiers et de l’Artisanat in Lille will open its doors at the beginning of 2019.
일단 스크랩하고 나중에 번역을 하도록 하겠음.
노출콘크리트 건축물 같고, 입면의 노출콘크리트면 디테일도 상당히 독특함.
의외로 오 작품 좋다~ 하고 다시 본 건축물 중에 KAAN Architecten이 많다.
눈여겨 봐야 할 듯...






















































'Architecture! > Architectures' 카테고리의 다른 글
| OMA - Taipei Performing Arts Center (0) | 2022.07.13 |
|---|---|
| Mario Botta - 남양성모성지 (0) | 2022.05.01 |
| Peter Zumthor - The Therme Vals_photo by Fernardo Guerra (0) | 2022.04.12 |
| Peter Zumthor - The Therme Vals (0) | 2022.04.11 |
| Earth House / Tomohiro Hata Architect and Associates (0) | 2022.03.31 |