아주 사적인 Zootopia
비싼 오디오랙 절대 사지 마라! 30만원으로 자작나무 원목 오디오랙 만들기!! 본문

사진처럼 수납장을 오디오랙으로 쓰면 절대 안 된다는 사실를 뒤늦게 깨닫구선 싹 치워버리고

장비들을 바닥에 내려놓았다.
그런데 언제까지 장비들을 바닥에 두어야 하나...
고민을 좀 하다가 지난번처럼 자작나무 오디오랙을 다시 만들어 보기로 했다.
[오디오랙] 자작나무 원목 오디오랙 만들어 보기
우연한 기회로 오디오랙을 자작할 수 있는 정보를 접하게 되었다. 일반적으로 아크릴 판에 다리를 다는 형식으로 많이 제작되는데, 필자는 목재에 대한 애정도 있고해서 자작나무 합판으로 준
grancartzoo.tistory.com
(실제로는 목재보다 아크릴이 더 좋은 소재인 것 같으니 예산이 좀 넉넉한 분들은 아크릴로 제작해도 좋다.)
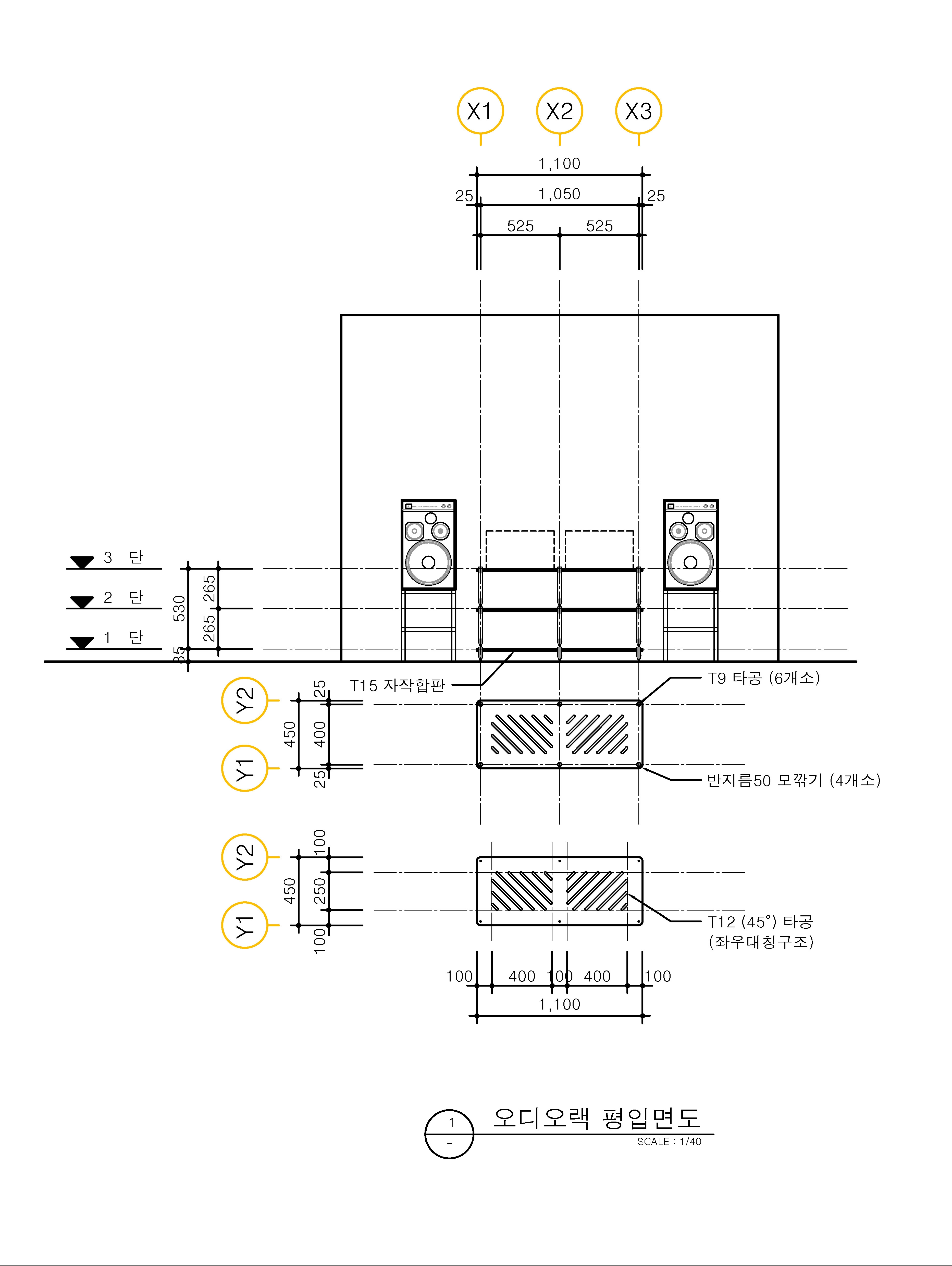
먼저 도면을 작성하고, 각 부품과 선반의 스펙을 결정했다.
기존처럼 튼튼한 25파이 기둥을 채택하고, 무난한 알루미늄 실버 색상으로 결정했다.
사실 골드 색상으로 하고 싶었는데, 일부 색상이 호환이 되지 않아서 가장 무난하고 또 저렴한 알루미늄 색상으로 바꾼 것이다.
애초에 기둥 대신에 큐블럭이라는 시멘트 블럭을 사용하고 싶었으나, 블럭의 사이즈 때문에 결국 장비 적재 공간이 줄어들기 때문에 이 역시 포기하였다.
일반적 풀사이즈 앰프를 두면 50cm, 2개를 좌우로 두면 100cm가 필요한데, 기둥이 차지하는 공간을 고려해서 10cm를 더 늘렸다.
앞뒤 깊이는 45cm 정도가 필요하고 추가적인 여유분은 필요없다 싶어 45cm 그대로 즉, 110cm x 45cm으로 제작했다.
내부 유효높이는 25cm 정도로 제작했다.
너무 타이트하면 다양한 장비를 사용하기 어려운 문제가 있다.

이번에는 발열 해소를 위한 사선으로 타공도 적용하고 15T 자작나무 합판으로 결정했다.
18T는 너무 두꺼워 보여서 였다.

각 치수별 필요한 수량을 산정하고 정확하게 주문했다.
판매처에서도 빠짐없이 잘 보내주었다.

도면을 목재 가공 업체에 의뢰해서 받았다.
타공 하나까지 모두 가공해서 받으니 필자가 직접 할 일은 줄었다.
지난 번에 타공을 직접 할 때는 목재가 파손이 많이 되었었다.

배송 중 합판에 사소한 손상이 있었지만 안 보이는 쪽으로 쓰기로 하고 조립을 시작했다.
합판 패턴을 보아 무늬가 예쁜 쪽을 상단으로 둘 것을 염두에 두고 조립해야 한다.
향후 오일 스테인을 먹일 수도 있다.
이번에 추가된 디테일은 바로 이 고무 패킹이다.
이게 더 단단하게 기둥을 체결해 줄 것이다.
기존 오디오랙도 수정해주려고 여유있게 주문했다.

조립을 완성한 모습
이 오디오랙은 분리형으로 각 단은 모두 별도의 구조이다.


발열이 가장 심한 A9.4를 최상단으로 올렸다.
약 25kg에 달하는 무게 때문에 합판이 약간 아슬아슬해 보였다.
18T가 필요하겠다 싶기도 했다.

상부에 공간이 많이 필요한 턴테이블이 옆자리를 차지했다.
그 아래에는 DAC와 포노앰프 자리가 되었다.
파워앰프 아래에는 프리앰프들이 잔뜩 자리를 잡았다.
현재는 Fosi P3, P4, ZP3가 테스트를 위해 함께 모였다.

그리고 이번에 테스트용 RCA 셀렉터도 장만했다.
이제 RCA 케이블 바꿔 끼느라 고생하지 않아도 된다.

가장 아래 단에는 공유기, 외장클럭, NAS 등이 자리했다.
하부 스파이크는 높이 조절을 위한 장치를 추가하였다.

어쨌거나 이렇게 마무리하고 보니 굉장히 만족스럽다.
'Product! > Modify' 카테고리의 다른 글
| Fosi P4 프리앰프 업그레이드 하기 (0) | 2025.10.22 |
|---|---|
| $220 짜리 톡반 RS-6, 필름캡 8개 갈았더니… 중역대가 미쳤다! (0) | 2025.09.04 |
| Fosi Audio P3 진공관 세라믹 소켓 교체하기 (0) | 2025.08.13 |
| [Hi-Fi 셀프 튜닝] #2 톡반 RS-6 프리앰프 알루미늄 전해 커패시터 자가 수리, 비자성 나사 튜닝하기 (1) | 2025.08.09 |
| 오디오 극성 맞추기, 미신일까 과학일까? 직접 접지 공사까지 해봄 (0) | 2025.07.22 |
