아주 사적인 Zootopia
구옥 인테리어 공사 #11 중문 및 현관 만들기 본문
0. Prologue
지난 철거편에서 다뤘지만 기형적인 평면 덕분에
공간의 낭비가 심각한 중문도 철거를 했다.
1. 중문 철거
중문 구조와 슬라이딩도어, 신발장, 바닥 마감재까지 싹 다 철거했다.
특별히 힘든 과정은 없다.



싹 다 걷어냈다.
2. 곰팡이 제거
사진상으로 대충 보이지만 어마어마한 곰팡이가 보이는데, 단열이 제대로 안 되서 그런 것이다.
이런 심각한 수준의 곰팡이는 못본척하고 가구로 덮든지, 도배를 하든지 간에 사라지지 않는다.
도배를 하면 위의 도배지로 균이 옮는다.
이런 곰팡이를 방치하면 실내 생활하는 사람에게 질병을 유발하거나
실내 공간에 불쾌한 냄새를 풍기기 때문에
개인적인 생각으로 인테리어 공사 때 꼭 해야할 문제가 아닌가 싶다.
그러나 곰팡이 제거를 한다고 해서 고객들이 인테리어 마감에 대한 심미적 만족도가 올라가거나 하지 않기 때문에
일반적으로 시공업체들이 이런 것들까지 신경 쓰는 일은 없을 것 같다.
그도 그럴 것이 무지 힘든데다 시간이 많이 들기 때문...
그리고 이런 곰팡이를 없애면 끝나는게 아니라 단열을 보강해서
실내 난방 온도와 외부 온도차로 인한 결로 발생을 원천 차단해야 곰팡이가 다시 생기지 않는다.
예쁜 가구, 도배 해놓으면 뭐하나 곰팡이가 싹 피면 말이죠.


이렇게 종이를 부착해서 곰팡이 제거제를 머금도록 해서 오랫동안 곰팡이 뿌리까지 뽑힐 때까지 계속해서 약품을 뿌려주었다.
실제로 처음에 검은색이었던 미장면이 깨끗하게 변했다.


사진에 보면 크랙 보수용 주사기 좌대가 있는데,
당시에 크랙 보수에 대한 이해가 부족해서 삽질을 조금 한 것 같다.
이런 경우에는 침투성 에폭시로 충분한데, 주사기 방식은 굳이 쓸 필요가 없다.
다른 포스팅에서 다룬 것처럼, 본 건물은 콘크리트 건물이 아니라 조적조 건물에 미장 마감을 한 것이다.
물론 수십년간 조금씩 건물이 틀어져서 미장에 크랙이 간 것은 맞지만
이런 주사기 주입식 크랙 보수제는 콘크리트 보수용이고, 다음 링크의 씰링제로 크랙의 틈이 막히기만 하면 되는 것이다.
구멍 안으로 액을 아무리 부어넣어도 시멘트벽돌의 공극 때문에 에폭시가 무한히 들어가도 효과가 없다.
콘코리아 주식회사
씨카,마페이,호스록 자재판매·시공 탄소섬유보강,균열보수,에폭시보강,바닥수평
conkorea.com
곰팡이 제거 후를 보면 벽면이 깨끗해진 것을 알 수 있다.

3. 중문 구조 만들기
이제 중문 구조를 설치할 것인데, 나는 재료로 방부목으로 결정했다.
적당한 사이즈와 튼튼한 내구성, 혹시라도 환경 때문에 상하는 일이 없기를 바래서 그렇게 했다.
30x70 사이즈였던 걸로 기억하는데 이정도면 어설픈 다루끼로 만드는 것보다는 훨~씬 튼튼하다.

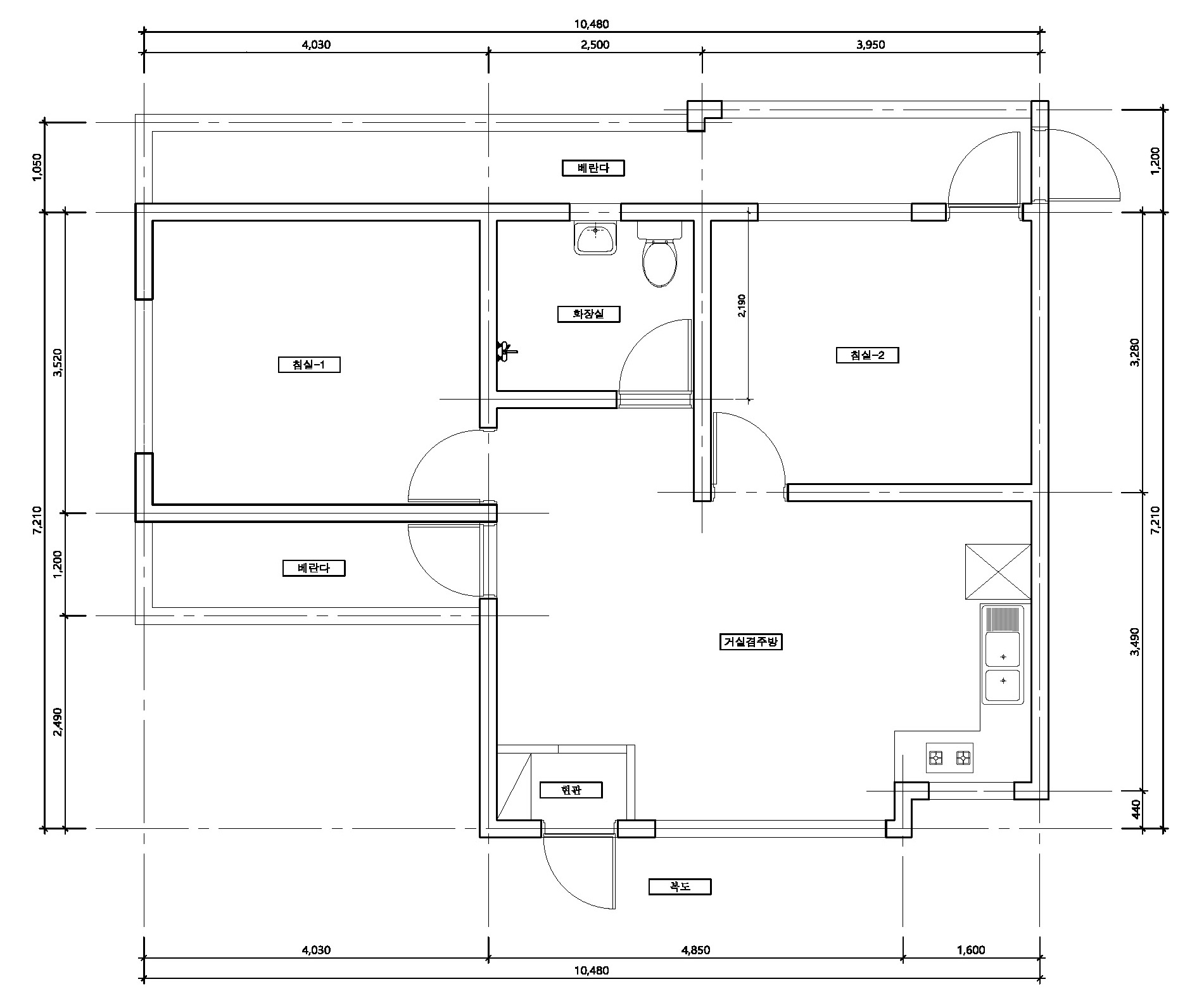
계획을 도면으로 살펴보면
기존 중문은 슬라이딩도어가 설치되었고, 앞뒤 깊이가 780mm 정도로 한사람이 서있기에 굉장히 답답한 공간이었다.
요즘 추세가 현관을 길게 뽑고 수납공간을 크게 주는 건데, 너무 공간이 협소하다.
지금 드는 생각은 더 크게 할걸 그랬나 하는 생각이...

특별한 변경은 하지 않고, 중문은 투명 스윙도어로 변경하고 공간을 1200mm까지 늘린 것이다.
만약 지금 다시 계획하라고 한다면 위쪽에 베란다 입구까지 늘릴 것 같다.
그러면 현관 수납 공간이 늘어나고, 자전거 같은 것도 놓을 수 있을것 같고
평면에서 보다시피 거실 뒷벽 역할도 할 수 있을 것 같다.

모든 방향으로 문이 나 있는 바람에 거실이 없다고 볼 수 있다.
일반적으로 거실이라하면 ㄷ 자 공간에 우측으로 창문, 앞뒤로 소파+TV를 배치하는 것이 일반적인데
이 평면도를 봤을 때 어디 소파를 놓고 어디 TV를 놓을까.
나는 성격상 TV를 거실에 놓지 않으니 다행이긴 한데,
만약에 현관이 길어졌으면 거실의 벽면 역할을 해줄 것이라 생각해 볼 수 있다.(뒷북)

단열 문제로 구조목을 벽면에 미리 설치하고 단열+석고보드 시공 후에 시공했다.

사이즈에 맞게 설치하고 가로목을 설치했다.


창문을 낼 자리를 만들었다.
너무 작게 만든건가 하는 생각이 들었다.


단열재가 많이 남아서 단열재를 가득 채웠다.
실제로 현관문이 외기를 막아주지 못 했고, 단열 성능이 필요한 공간이기 때문에 단열이 어느 정도 필요하다.


당시에 EPS 비드법 단열재 2종 1호 정도로 사용했던 것 같은데...
정확히 기억은 안 난다...ㅠ
단열재의 종류/ 비드법 단열재(EPS)의 특징
알갱이로 이루어진 비드법 단열재 안녕하세요 패시브 전문가 로이 지기입니다 : D 오늘은 많은 분들께서 ...
blog.naver.com
단열재는 돈이 좀 들더라도 확실하게 해주자.
연구 결과에 따르면 단열재 시공 후에 빠른 속도로 그 성능도 하락한다 하니, 단열재를 아낄 일은 아닐 것 같다.






결과물을 보는 입장에서는 간단해 보이지만, 엄청 고생했던 기억이 난다.
이 부분은 100% 셀프로 제작했으니...ㅋㅋ
단열재를 2중으로 넣을걸 하는 생각은 드는데...이제 와서 무슨...ㅋㅋㅋ
4. 현관턱
현관턱은 멀바우 집성목으로 결정했다.
일반적인 인조대리석 같은 제품을 피하려고 한 선택인데
샌딩 외의 별도 가공을 안 해서인지 그다지 반응이 좋지 않았다.
오일스테인이라도 먹일 계획이다.







다크월넛 컬러 오일스테인으로 3회 칠했다.
붓으로 듬뿍 바른 다음에 적당한 텀을 둬서 수건으로 닦아낸다.
적당히 말랐다 싶으면 반복
사진에 보면 멀바우가 적색 계통이라 검은 색상 강마루랑 어울리는지 잘 모르겠다.
여기에 타일 색상까지 섞이면 어떨런지...
쪼끔 아쉽네...ㅜㅜ
5. 중문 디자인 고르기
내가 원하는 디자인은 검은 살대가 있는 투명유리 스윙도어였다.
게다가 유리는 망입유리를 사용하고 싶었는데...
망입유리는 가운데 금속이 들어가기 때문에 무게가 많이 무거워서 도어가 버티지 못 하고 빨리 쳐질 가능성이 높다 해서
약간은 포기한 면이 있다.


6. 중문 설치하기
트윈도어 형에 C타입 정도가 내가 원하는 그림
완전히 일치하는 제품을 설치하진 못 했지만 비슷한 제품을 설치했다.







실제 설치하게 된 것은 디자인을 흉내만 낸 좀 더 저렴한 제품으로 설치하게 되었다.
망입유리 모양이 유리에 프린트된 제품이다. 썩 좋지는 않다.
바닥이 고르지 않아 아래 쪽에도 공간이 상당히 뜨게 되었지만 전체적으로 만족한다.
아래에 보면 멀바우가 설치된 것도 볼 수 있는데, 마루바닥과 색상이 어울리지 않아서 아쉽다.
7. 중문 창문 유리 설치
중문 유리 설치는 자작나무 합한으로 프레임을 만들고
이번엔 진짜 망입유리로 설치했다.
사진에는 없지만 유리 시공자 분이 집에 유리를 들고 도착하자 마자 깨버리는 바람에
다시 만들어 오셨다.



사진으로 보니 자작나무 합판 두께가 조금 더 두꺼우면 예쁘지 않을까 싶다.
아니면 자작나무 합판에 오일스테인을 먹인다든지 ㅋㅋ
모든 합판에 오일스테인 작업을 할 수 없어 생략하긴 했는데
오일스테인 먹인 것이 훨씬 예쁘긴 하다.
8. 도어 몰딩
석고보드 코너 부분에 코너비드 테이프를 시공해줬다.
코너는 특히 잘 손상되기 때문에 해주는 것이 좋다.




다른 도어와 같은 색상의 도어 몰딩을 설치했다.
검은색 도어와는 덜 어울리긴 하는데, 전체적인 컨셉(?) 때문에 다른 도어와 통일했다.
이게 이번 공사에서 제일 골치 아픈 부분이었다.
'Architecture! > Interior' 카테고리의 다른 글
| 구옥 인테리어 공사 #13 주방 타일 시공하기 (2) | 2022.02.12 |
|---|---|
| 구옥 인테리어 공사 #12 석고보드 시공 (1) | 2022.02.09 |
| 구옥 인테리어 공사 #10 철거 작업 (0) | 2022.02.06 |
| 구옥 인테리어 공사 #9 화장실 기구 시공 (0) | 2022.02.06 |
| 구옥 인테리어 공사 #8 타일 시공 (0) | 2022.02.05 |
